CÔNG TY THIẾT KẾ & THI CÔNG AN DUY
CÔNG TY THIẾT KẾ & THI CÔNG AN DUY
0906736440
http://anduyinterior.com/
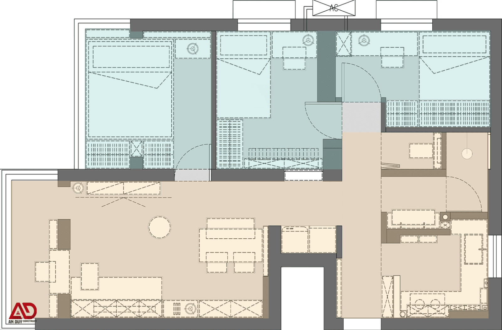
Dự Án Cải Tạo Căn Hộ Cũ Thành Tổ Ấm Hiện Đại & Tối Ưu Từng Mét Vuông
Trang chủ
Giới thiệu
Dịch vụ
THIẾT KẾ NỘI THẤT
THIẾT KẾ NỘI THẤT NHÀ PHỐ
THIẾT KẾ NỘI THẤT CHUNG CƯ
THIẾT KẾ NỘI THẤT BIỆT THỰ
THIẾT KẾ NỘI THẤT PHÒNG KHÁCH
THIẾT KẾ NỘI THẤT PHÒNG BẾP
THIẾT KẾ NỘI THẤT PHÒNG NGỦ
THIẾT KẾ NỘI THẤT PHÒNG THỜ
THI CÔNG NỘI THẤT
THI CÔNG NỘI THẤT NHÀ PHỐ
THI CÔNG NỘI THẤT CHUNG CƯ
THI CÔNG NỘI THẤT BIỆT THỰ
Sản phẩm
Dự án
Tin tức
Liên hệ
08:00-17:00
47/26 Trần Văn Cẩn, Tân Thới Hoà, Tân Phú, TP Hồ Chí Minh
0906736440
tgiaphuc0306@gmail.com
https://anduyinterior.com/
Trang chủ
Dự Án
Dự Án Cải Tạo Căn Hộ Cũ Thành Tổ Ấm Hiện Đại & Tối Ưu Từng Mét Vuông
Dự Án Cải Tạo Căn Hộ Cũ Thành Tổ Ấm Hiện Đại & Tối Ưu Từng Mét Vuông
0
0906736440